Szczegóły oferty
Typ nieruchomościlokale mieszkalne
Lokalizacjamałopolskie
Powierzchnia142,27
Oferta aktualna od13.03.2026
Cena9 603,56 zł
PKO Bank Polski S.A., Biuro Administrowania Nieruchomościami - Zespół Nieruchomości i Kontraktów w Krakowie proponuje Państwu do wynajmu nieruchomość położoną w Andrychowie ul. Krakowska 138.
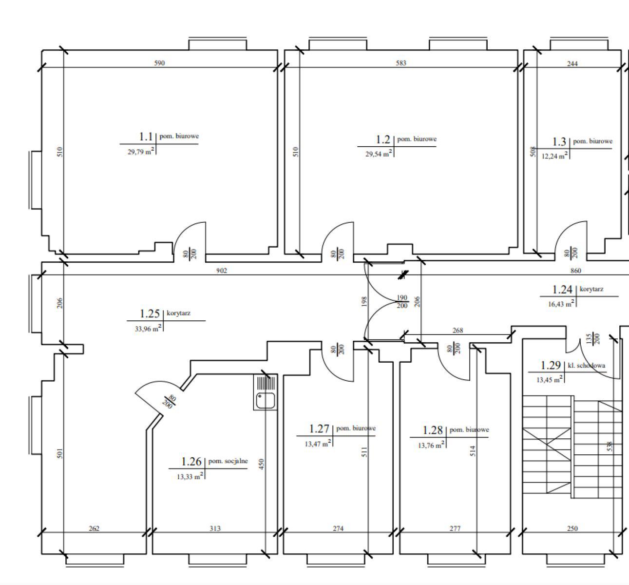
Nieruchomość stanowią lokale usługowe o łącznej powierzchni 142,27 m², zlokalizowane w centrum Andrychowa w dzielnicy mieszkaniowo-usługowej.
Nieruchomość mieści się w budynku banku z oddzielnym wejściem. Lokale znajdują się bezpośrednio
przy głównej arterii miasta, w miejscu o bardzo dużym natężeniu ruchu pieszych, z licznymi witrynami sklepowymi wzdłuż ulicy, w sąsiedztwie restauracji oraz budynków użyteczności publicznej. Przy budynku znajdują się ogólnodostępne miejsca parkingowe.
Szczegóły oferty:
Pomieszczenia w stanie technicznym dobrym. Lokal kwalifikuje się do przeprowadzenia prac remontowych/adaptacyjnych. W ramach oferowanej powierzchni znajduje się 5 pomieszczeń + korytarz
+ 2 łazienki + 2 kuchnie, usytuowanych na jednym poziomie, na kondygnacji 2 piętra.
Powierzchnia 142,27 m².
Koszt najmu wynosi 54,88 zł netto/ m2 + opłaty eksploatacyjne.
Miesięczny koszt najmu: 7 807,00 zł netto.
Istnieje możliwość wynajęcia pojedynczych pomieszczeń.
Opłaty z tytułu obciążeń publiczno-prawnych, wynikające z ustawy z dnia 12 stycznia 1991 roku o podatkach i opłatach lokalnych ponosi Właściciel nieruchomości. Dodatkowo Najemca jest zobowiązany dostarczyć Wynajmującemu w terminie 14 dni od daty podpisania umowy najmu oświadczenia o dobrowolnym poddaniu się egzekucji sporządzonego w formie aktu notarialnego przez notariusza zgodnie z art. 777 § 1 pkt. 4 Kodeksu postępowania cywilnego z dnia 17 listopada 1964 roku z późniejszymi zmianami, w którym Najemca poddaje się egzekucji, co do zwrotu Przedmiotu Najmu w przypadku wygaśnięcia lub rozwiązania Umowy oraz obowiązku zapłaty czynszu zgodnie z Umową, co do kwoty będącej równowartością trzymiesięcznego czynszu brutto, z tym, że Wynajmujący będzie miał prawo wystąpienia o nadanie klauzuli wykonalności temu aktowi w terminie do 6 miesięcy od daty rozwiązania umowy.
W razie szczegółowych pytań informacje można uzyskać od zarządcy nieruchomości Justyny Rączki,
tel.: +48 696 409 068 w godzinach 8:00-16:00 od poniedziałku do piątku. Zainteresowanych zapraszamy również do kontaktu e-mailowego na adres: justyna.raczka@pkobp.pl
Możliwa prezentacja nieruchomości od poniedziałku do piątku w godz. 10.00-14.00 po wcześniejszym umówieniu telefonicznym z administratorem nieruchomości Hubertem Sieczką, tel.: +48 666 823 052.
Ogłoszenie nie stanowi oferty w rozumieniu art. 66 Kodeksu cywilnego.
Podane dane mają charakter wyłącznie informacyjny i mogą odbiegać od stanu faktycznego.
Serdecznie zapraszamy do złożenia oferty.
małopolskie
ul. Krakowska 138

lokale użytkowo-biurowe, 275,40 m2
Cena: 1 550 000,00 zł

budynki użytkowo-biurowe, 2347,28 m2
Cena: 3 400 000,00 zł

budynki użytkowo-biurowe, 4144,48m²
Cena: 1 649 000,00 zł

lokale użytkowo-biurowe, 872,30 m2
Cena: 1 380 000,00 zł