Szczegóły oferty
Typ nieruchomościlokale użytkowo-biurowe
Lokalizacjaświętokrzyskie
Powierzchnia1, 119,74, m²
Oferta aktualna od19.03.2026
Cena56 785,26 zł
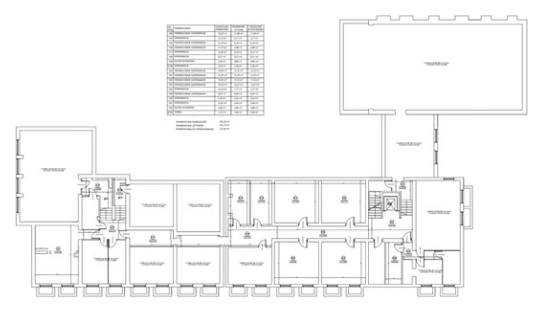
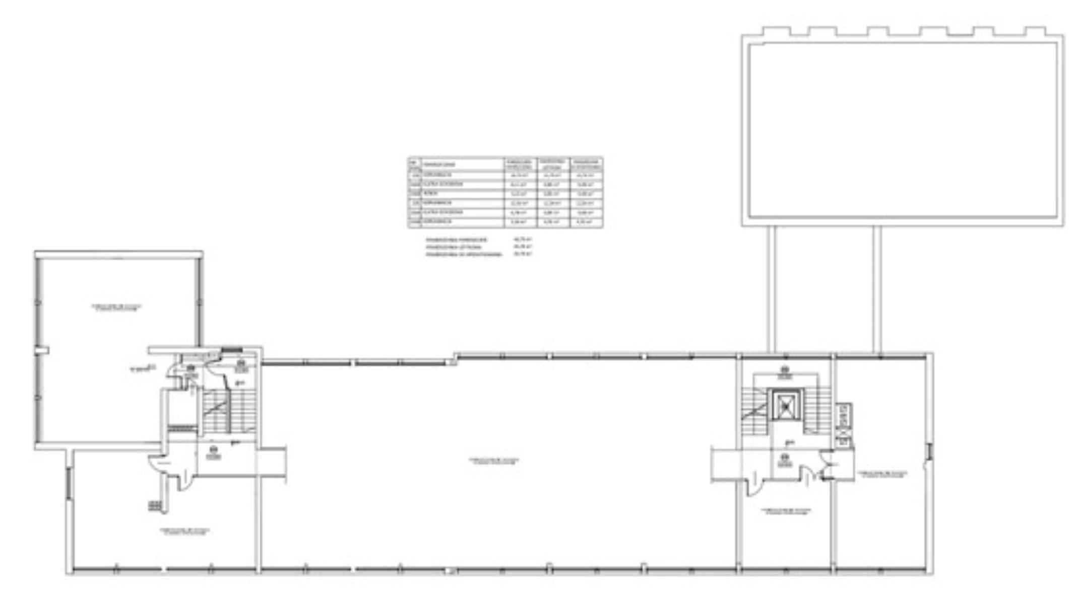
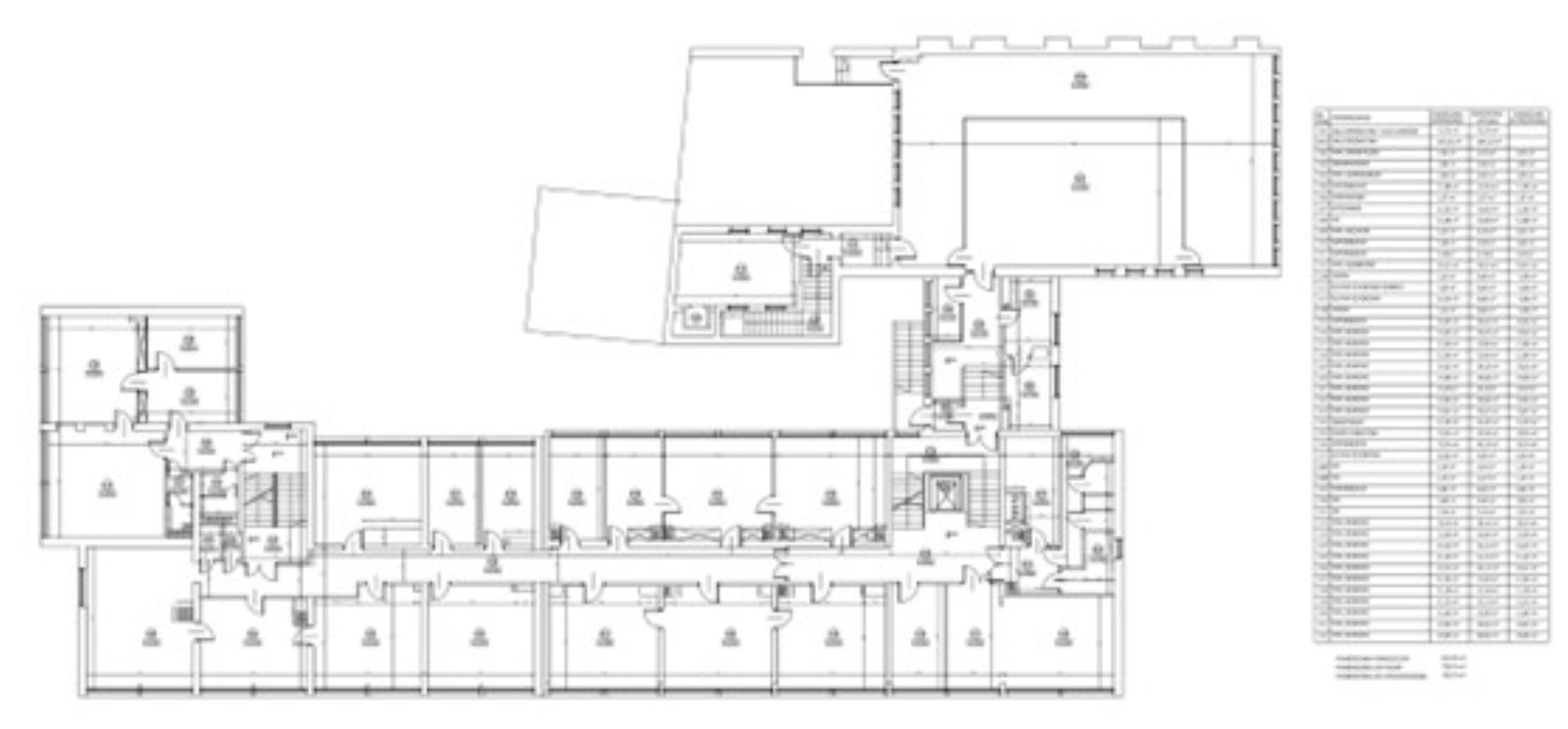
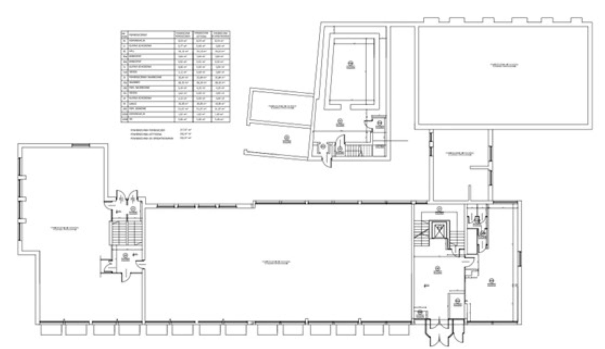
PKO Bank Polski S.A., Biuro Administrowania Nieruchomościami - Zespół Nieruchomości i Kontraktów w Krakowie proponuje Państwu do wynajmu nieruchomość położoną w Kielcach ul. Wesoła 47/49. Przedmiotem oferty jest powierzchnia o łącznej wartości 1 119,74 m², która stanowi część trzech kondygnacji budynku, usytuowana w centrum Kielc w dzielnicy mieszkaniowo-usługowej.
Nieruchomość położona jest w atrakcyjnej lokalizacji przy jednej z głównych ulic miasta, w ścisłym centrum. Usytuowanie gwarantuje doskonały dojazd, łatwy dostęp dla Klientów oraz dużą widoczność. W bezpośrednim sąsiedztwie lokalu są przystanki autobusowe oraz dostępny parking dla Klientów budynku. Lokal znajduje się w sąsiedztwie sklepów, restauracji oraz budynków użyteczności publicznej. Dostęp do budynku ułatwia podjazd dla wózków.
Szczegóły oferty:
Pomieszczenia w stanie technicznym dobrym.
Lokal znajduje się w sąsiedztwie sklepów, restauracji oraz budynków użyteczności publicznej. Dostęp do budynku ułatwia podjazd dla wózków. Wyposażony jest w instalację elektryczną, wodno-kanalizacyjną, ogrzewanie jest zapewnione poprzez własną kotłownię gazową.
Powierzchnia biurowa 1 119,74 m²
Poziom -1: 195,64 m²
Poziom 0: 177,12 m²
Poziom 1: 708,07 m²
Poziom 2: 16,25 m²
Poziom 3:17,81 m²
Poziom 4 (wyjście na dach): 4,85 m²
Miesięczny koszt najmu: 46 166,88 zł netto. Istnieje możliwość wynajęcia pojedynczych pomieszczeń. Cena za m2 to 41,23 zł netto + opłaty eksploatacyjne.
Opłaty z tytułu obciążeń publiczno-prawnych, wynikające z ustawy z dnia 12 stycznia 1991 roku o podatkach i opłatach lokalnych ponosi Właściciel nieruchomości. Dodatkowo Najemca jest zobowiązany dostarczyć Wynajmującemu w terminie 14 dni od daty podpisania umowy najmu oświadczenia o dobrowolnym poddaniu się egzekucji sporządzonego w formie aktu notarialnego przez notariusza zgodnie z art. 777 § 1 pkt. 4 Kodeksu postępowania cywilnego z dnia 17 listopada 1964 roku z późniejszymi zmianami, w którym Najemca poddaje się egzekucji, co do zwrotu Przedmiotu Najmu w przypadku wygaśnięcia lub rozwiązania Umowy oraz obowiązku zapłaty czynszu zgodnie z Umową, co do kwoty będącej równowartością trzymiesięcznego czynszu brutto, z tym, że Wynajmujący będzie miał prawo wystąpienia o nadanie klauzuli wykonalności temu aktowi w terminie do 6 miesięcy od daty rozwiązania umowy.
W razie szczegółowych pytań informacje można uzyskać od zarządcy nieruchomości Kingi Krakowieckiej-Lis, tel.: +48 666 820 706 w godzinach 8:00-16:00 od poniedziałku do piątku. Zainteresowanych zapraszamy również do kontaktu e-mailowego na adres: kinga.krakowiecka-lis@pkobp.pl
Możliwa prezentacja nieruchomości od poniedziałku do piątku w godz. 10.00-14.00 po wcześniejszym umówieniu telefonicznym z administratorem nieruchomości Ligią Jurys, tel.: +48 666 820 908.
Ogłoszenie nie stanowi oferty w rozumieniu art. 66 Kodeksu cywilnego.
Podane dane mają charakter wyłącznie informacyjny i mogą odbiegać od stanu faktycznego.
Serdecznie zapraszamy do złożenia oferty.
świętokrzyskie
ul. Wesoła 47/49

budynki użytkowo-biurowe, 2347,28 m2
Cena: 3 400 000,00 zł

budynki użytkowo-biurowe, 4144,48m²
Cena: 1 649 000,00 zł

lokale użytkowo-biurowe, 872,30 m2
Cena: 1 380 000,00 zł

lokale użytkowo-biurowe, 275,40 m2
Cena: 1 550 000,00 zł